هیئت امنای مسجد آل رسول به منظور برپایی مسجدی به عنوان مرکز اجتماع و برگزاری مراسم مذهبی ابهری های مقیم تهران ، زمینی واقع در منطقهی شهران را به وسیلهی شهرداری تهران، تملک کردهاند. این زمین همانگونه که در گزارش بازدید از سایت توسط استودیو پنجاوهفت آمد، در دل محلهای مسکونی در انتهای خیابان لاله- یکی از شریانهای فرعی بلوار شهران- واقع شده است. سایت از لحاظ موقیت قرارگیری بر روی تپهای قرار دارد که از سمت جنوب به بزرگراه همت، از شمال به منطقهی مسکونی، از شرق به بزرگراه باکری، و از غرب به ساختمان میوه و ترهبار محلهی شهران منتهی می شود. به دلیل اشراف کامل سایت به دو بزرگراه مهم شهر و همچنین قرارگیری در دل محلهی مسکونی، پیش بینی میگردید که این مسجد از یک سو به عنوان نشانهی شهری و از سویی دیگر به عنوان فضای عمومی مذهبی در مقیاس محله، مورد توجه واقع گردد.
پرسپکتیو از سمت نمای شمالی
در گفتوگوهای اولیهی کارفرما و استودیوی پنجاوهفت مشخص گردید، انتظار اصلی کارفرما ساخت مسجدی محلی میباشد که پاسخگوی برگزاری مراسم مذهبی از جمله جشنها و ختمهای اهالی محل و همچنین ابهریهای مقیم تهران باشد. به همین سبب یکی از مسائل مهم پیش روی ما پس از طراحی کالبد اصلی مسجد، فراهم آوردن سالنهای اجتماعات وسیع میبود.
موقعیت استقرار سایت در شهر (Google Map)
فرآیند طراحی معماری مسجد در استودیوی پنجاوهفت، بر اساس پاسخگویی به سه چالش اصلی آغاز شد؛ جوابگویی به برنامه طرح، توجه به چالشهای متعدد موجود در سایت و همچنین پاسخ به پرسشهای طراحان از بایدها و نبایدها در چگونه ساختن مسجد براساس توجه به آموزههای اسلامی.
پرسپکتیو از سمت شمال شرقی
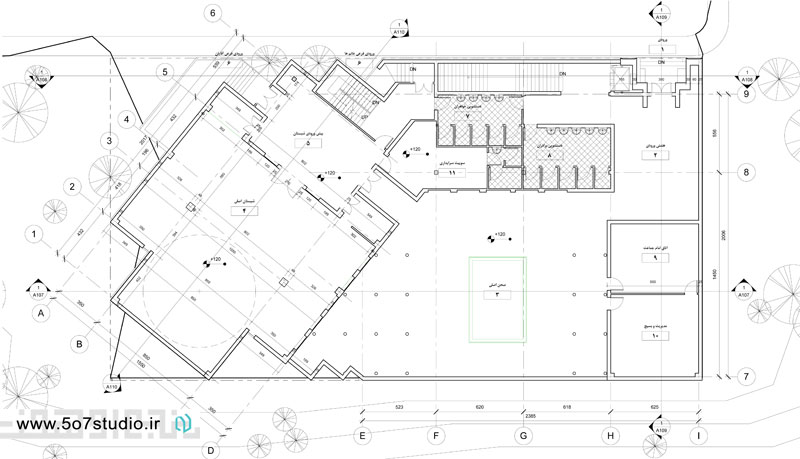
در رابطه با برنامه طرح، مسائل اصلی پیش روی ما، عبارتند از: چگونگی همجواری سالنهای اجتماعات و فضای اصلی مسجد، چگونگی تفکیک مسیر های ورود و حرکت آقایان و خانمها در مسجد و همچنین سالنهای اجتماعات، توجه به موضوعات فقهی صیغه ی مسجد و مسائل مرتبط به آن، مکانیابی مناسب تاسیسات و تجهیزات مکانیکی و ایجاد مسیرهای دسترسی مناسب به منظور نگهداری و تعمیر آنها. به این ترتیب با توجه به مسائل مطرح شده، ساختمان مسجد در دو طبقه روی زمین و یک طبقه زیرزمین پیش بینی شد که دو طبقهی بالا به صحن و شبستانهای آقایان و خانمها و طبقهی زیرین به سالنهای اجتماعات و تاسیسات مکانیکی اختصاص یافت. در ضمن به منظور تفکیک مسیرهای ورودی و حرکت آقایان و خانمها سه ورودی برای مسجد در نظر گرفته شد.
سایت پلان
در رابطه با سایت پروژه، چالشهای عمده عبارتند از: وجود بافت مسکونی و چگونگی همجواری مناسب مسجد و بافت به طوری که علاوه بر حفظ شخصیت مسجد ناهمگونی در بافت ایجاد نگردد؛ چگونگی مستهلک ساختن مناسب انحراف راستای قبله و سایت؛ توجه به شیب آرام سمت جنوبی سایت؛ توجه به دیده شدن مناسب مسجد از سمت بزرگراه حکیم؛ مجاورت مسجد با ساختمان میوه و تره بار؛ قرارگیری سایت در انتهای خیابان قدس. به این ترتیب برای رفع اختلاف جهت مابین قبله و سایت، حجم اصلی شبستان مسجد به سمت قبله 38 درجه چرخش مییابد و برای ایجاد همآهنگی با سایت مابقی بنا در جبههی شمالی و شرقی در راستای خیابان بدون هیچ چرخشی باقی میماند. همچنین با توجه به شیب زمین و استقرار سالنهای اجتماعات در طبقهی زیرین، نورگیرهایی در جبهه ی جنوبی بنا در دل شیب زمین به منظور تامین نور طبیعی در سالن ها درنظرگرفته شد.
پرسپکتیو از سمت جنوب شرقی
و در رابطه با چالش سوم یعنی توجه به الزامات ساخت مسجد از دیدگاه اسلام، موضوعاتی چون: میزان ارتفاع مسجد و عدم ساخت مسجدی مرتفع؛ چگونه پرداختن به موضوع هویت و شاخصسازی مسجد؛ لزوم یا عدم لزوم پایبندی به فرم های آشنا در سنت ساخت مسجد از جمله گنبد، منار، قوس و ... ؛ توجه به موضوع پرهیز از تزیینات و تجملات رایج در ساخت مساجد امروزین؛ توجه به کیفیت فضایی و پوشش سقف مساجد. به این ترتیب تصمیم طراحان بر این بود که مسجد باید تا حد امکان ساده و بدون تجمل، شاخص و متفاوت از بافت، بیان کنندهی راستای قبله در محله باشد. در رابطه با شاخصسازی مسجد با وجود تفاوت دیدگاهها، در نهایت بدین جمع بندی رسیدیم که ساخت سردر و ورودی شاخص در سمت شمال شرقی سایت و نصب کتیبه در نمای شمالی میتواند نقش کافی در شناساندن مسجد ایفا نماید.
پلان همکف
پلان طبقه اول
پلان زیرزمین
نمای شمالی
نمای جنوبی
نمای شرقی
نمای غربی
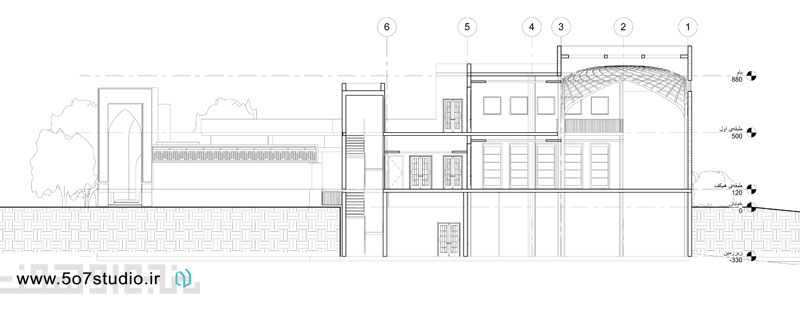
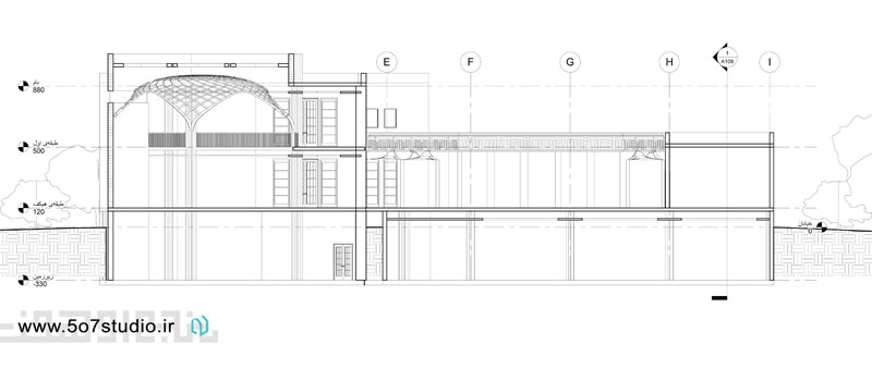
برش طولی از مجموعه
برش طولی از مجموعه
اطلاعات پروژه:
کاربری : مسجد
موقعیت سایت : ایران ، تهران ، بلوار شهران ، خیابان لاله ، خیابان فائز یک
کارفرما : هیئت امنای مسجد آل رسول (ابهری های مقیم تهران)
اعضای گروه طراحی معماری : محمدحسین کسرائی، صادق لطفی زاده، یحیی نوریان
اعضای گروه محاسبات سازه : پدرام شهسوار
زمان طراحی : 1390
زمان اجرا :1391
زیربنای کل :1972 مترمربع
این مسجد هماکنون در حال احداث میباشد که گزارش سیر روند اجرای آن نیز در وبلاگ استودیو پنج اوهفت به مرور زمان داده خواهد شد.
| نام پروژه | |
| کارفرما | |
| مکان پروژه | |
| سال پروژه | |
| برنامهریزی | |
| وضعیت | |
| زیربنای ساخت | |
| مساحت زمین | |
| معمار مسئول | |
| تیم طراحی معماری | |
| طراحی سازه | |
| تاسیسات الکتریکی | |
| تاسیسات مکانیکی | |
| پیمانکار | |
| نمونهسازی | |
| طراحی منظر | |
| تصویرسازی | |
| عکاس | |
| لینک |
